Rif: 1612RV95026
OLEGGIO CASTELLO
NOVARA
Rif: 1612RV95026 - Villa moderna in classe A3 nel rinomato “Ranch” di Oleggio Castello
In posizione privilegiata, ai margini del suggestivo Parco dei Lagoni, proponiamo in vendita una villa indipendente di recente costruzione (2017), inserita in un contesto esclusivo, riservato e immerso nel verde.
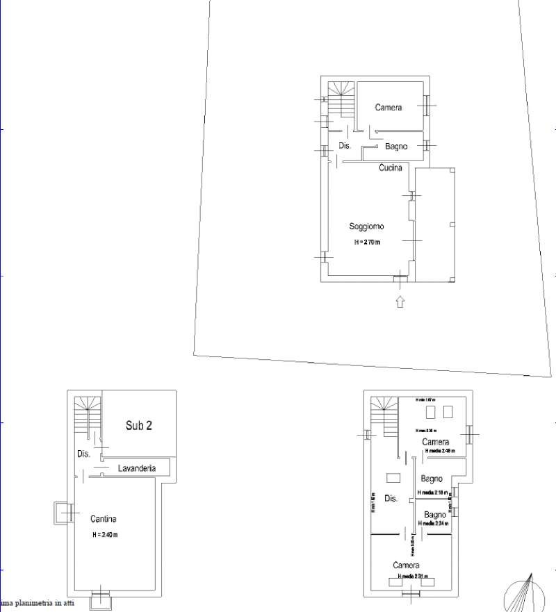
L'abitazione, in classe energetica A3 è dotata di pannelli solari, impianto fotovoltaico e pompa di calore si sviluppa su una superficie complessiva di circa 270 mq, e offre ambienti moderni, luminosi e pensati per il massimo comfort abitativo.
Il piano principale raggiungibile tramite due funzionali scale esterne, si apre su una zona giorno accogliente con cucina open space, caratterizzata da ampie vetrate che affacciano sul portico coperto, ideale per pranzi e momenti di relax all'aperto. Completano il piano terra una camera matrimoniale e un ampio bagno con doccia.
Piano superiore
Due camere matrimoniali, entrambe con bagno en suite, assicurano privacy e comodità per tutta la famiglia o per gli ospiti.
Piano seminterrato
Una spaziosa taverna, un bagno/lavanderia e un garage + un ampio spazio coperto dove ricoverare due automobili. La villa dispone inoltre di due ingressi indipendenti, entrambi con porta blindata.
La proprietà è circondata da un giardino pianeggiante e curato nei dettagli, dove si trovano una casetta per gli attrezzi e una zona barbecue con forno a legna, perfetta per cene in compagnia e momenti conviviali all'aperto.
Una soluzione ideale per chi desidera vivere nella tranquillità della natura, senza rinunciare alla comodità, all'eleganza e all'efficienza energetica di una residenza moderna.
In posizione privilegiata, ai margini del suggestivo Parco dei Lagoni, proponiamo in vendita una villa indipendente di recente costruzione (2017), inserita in un contesto esclusivo, riservato e immerso nel verde.
L'abitazione, in classe energetica A3 è dotata di pannelli solari, impianto fotovoltaico e pompa di calore si sviluppa su una superficie complessiva di circa 270 mq, e offre ambienti moderni, luminosi e pensati per il massimo comfort abitativo.
Il piano principale raggiungibile tramite due funzionali scale esterne, si apre su una zona giorno accogliente con cucina open space, caratterizzata da ampie vetrate che affacciano sul portico coperto, ideale per pranzi e momenti di relax all'aperto. Completano il piano terra una camera matrimoniale e un ampio bagno con doccia.
Piano superiore
Due camere matrimoniali, entrambe con bagno en suite, assicurano privacy e comodità per tutta la famiglia o per gli ospiti.
Piano seminterrato
Una spaziosa taverna, un bagno/lavanderia e un garage + un ampio spazio coperto dove ricoverare due automobili. La villa dispone inoltre di due ingressi indipendenti, entrambi con porta blindata.
La proprietà è circondata da un giardino pianeggiante e curato nei dettagli, dove si trovano una casetta per gli attrezzi e una zona barbecue con forno a legna, perfetta per cene in compagnia e momenti conviviali all'aperto.
Una soluzione ideale per chi desidera vivere nella tranquillità della natura, senza rinunciare alla comodità, all'eleganza e all'efficienza energetica di una residenza moderna.
